2-комнатная, 47.7 м², 1/1

4 месяца назад

г Сокол, ул Беляева, 9 На карте

Микрорайон: Печаткино

1 700 000 ₽

35 640 ₽/м²

Рассчитать ипотеку
К избранному

Описание

🏠 Отличное предложение! Просторная 2-комнатная квартира в районе Печаткино.

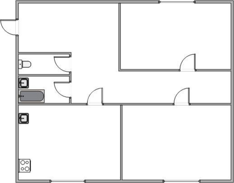
Предлагаем светлую и теплую 2-комнатную квартиру на 1 этаже пятиэтажного кирпичного дома. Общая площадь – 47,7 кв.м, кухня – 6 кв.м.

✨ Преимущества квартиры:
• Очень теплая и комфортная для проживания.
• Изолированные комнаты — идеально для семьи.
• Окна в одной комнате пластиковые, остальные — деревянные.
• Раздельный санузел — удобно для всех членов семьи.
• Есть темная комната для хранения — дополнительное место для вещей.
• Квартира свободна, ключи — в день сделки.
• Без долгов и обременений — чистая сделка.
• Балкона нет, что обеспечивает тишину и уют.

📋 Документы полностью готовы к продаже. Встречный вариант не рассматриваем.

🌟 Развитая инфраструктура:
• Во дворе детский сад и детская площадка — безопасно и удобно для детей.
• Рядом школа №3 и кадетский корпус — отличное образование рядом с домом.
• Магазины и ДК «Сухонский» — всё необходимое под рукой.
• Площадь с фонтанами для прогулок и отдыха.
• Удобные остановки общественного транспорта рядом.

🔑 Мы поможем вам собрать все необходимые документы и обеспечим полное юридическое сопровождение сделки — ваша безопасность и спокойствие гарантированы!

📞 Звоните прямо сейчас и записывайтесь на просмотр! Не упустите шанс стать владельцем замечательной квартиры в комфортном районе!

Хотите скидку?

Предложите свою стоимость

Характеристики

  • Тип домаКирпичный
  • Этаж1
  • Этажность1
  • Общая площадь47.7 м²
  • Площадь кухни6 м²
  • Код объекта4341

Запланируйте просмотр

С вами свяжется специалист по недвижимости, подтвердит выбранное время просмотра, организует посещение предложения и проведет вам экскурсию.

Выберите дату и время

История изменения цены

Дата

Цена

Разница

9 октября 2025 г.

1 700 000 ₽

Специалист по недвижимости - Королева Лидия

Королева Лидия

+7-900-543-43-32 Показать

или оставьте ваш номер, и мы вам перезвоним

Другие контакты:

Гарантия безопасности сделки

Ипотечный калькулятор

Рассчитайте ежемесячный платеж

Скидка на ставку 1-2%

от банков-партнеров для клиентов нашей компании

Похожие предложения

Позвонить