3-комнатная, 67.6 м², 4/5

4 месяца назад

г Сокол, ул Луковецкая, 4 На карте

Микрорайон: ЛДК

3 780 000 ₽

55 918 ₽/м²

Рассчитать ипотеку
К избранному

Описание

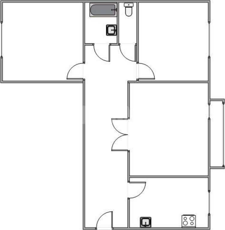
Предлагается к продаже уютная и очень светлая трехкомнатная квартира в районе ЛДК. Общая площадь 67.6 кв. позволяет комфортно разместиться всей семье. Просторная кухня в 12 кв. станет сердцем дома.

Комфорт и экономия:
Квартира оборудована газовым котлом, что обеспечивает автономное отопление и значительную экономию. На время отключения горячей воды в ванной комнате установлен электрический водонагреватель на 30 литров.

Качественный ремонт:
В квартире выполнен добротный ремонт: в спальне, гостиной и прихожей установлены натяжные потолки, в кухне и коридоре — практичные подвесные. Полы застелены ламинатом, в спальне — линолеум, а кухня и санузел отделаны напольной плиткой. Санузел — раздельный, что добавляет бытового удобства.

Дополнительные удобства:

· Лоджия застеклена и имеет освещение — идеальное место для отдыха.
· Четвертый этаж — оптимальная высота без лишних подъемов.
· Во дворе расположен детский сад, а в шаговой доступности — магазины, пункты выдачи заказов и вся необходимая инфраструктура.

Финансовые и юридические условия:
Квартира в собственности у одного взрослого человека. Полностью отсутствуют долги по коммунальным платежам и любые обременения. Для реального покупателя возможен торг.
Мы гарантируем вам полное юридическое сопровождение, налоговую консультацию и безопасное оформление сделки.

Вся инфраструктура рядом: школа, садики, магазины, аптека, рестораны, парк для прогулки.

Заинтересовало? Звоните.

Хотите скидку?

Предложите свою стоимость

Характеристики

  • Тип домаПанельный
  • Этаж4
  • Этажность5
  • Общая площадь67.6 м²
  • Площадь кухни12 м²
  • Код объекта4325

Запланируйте просмотр

С вами свяжется специалист по недвижимости, подтвердит выбранное время просмотра, организует посещение предложения и проведет вам экскурсию.

Выберите дату и время

История изменения цены

Дата

Цена

Разница

26 сентября 2025 г.

3 780 000 ₽

Специалист по недвижимости - Королева Лидия

Королева Лидия

+7-900-543-43-32 Показать

или оставьте ваш номер, и мы вам перезвоним

Другие контакты:

Гарантия безопасности сделки

Ипотечный калькулятор

Рассчитайте ежемесячный платеж

Скидка на ставку 1-2%

от банков-партнеров для клиентов нашей компании

Похожие предложения

Позвонить