2-комнатная, 42 м², 2/5

7 месяцев назад

г Сокол, ул Советская, 60 На карте

Микрорайон: Центр

2 250 000 ₽

53 572 ₽/м²

Рассчитать ипотеку
К избранному

Описание

Продается уютная 2-комнатная квартира в самом сердце города Сокол!

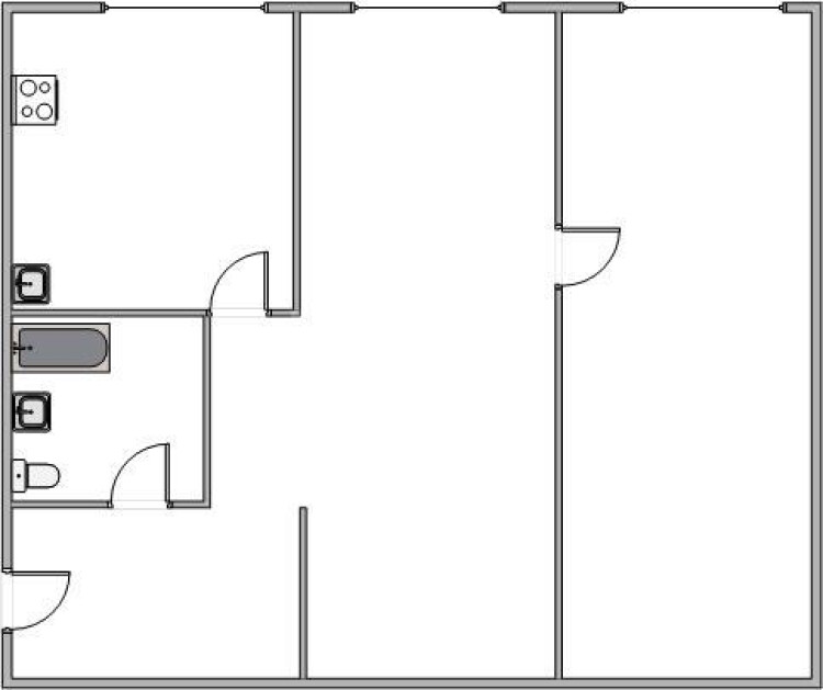
🏠 Общая площадь: 42 кв.м.
🍳 Кухня: 6 кв.м.
🚪 Этаж: 2 из 5 (кирпичный дом)

Преимущества квартиры:
✅ Центр города — все рядом!
✅ Теплая, светлая квартира с пластиковыми окнами
✅ Удобная смежная планировка
✅ Совмещенный санузел
✅ Центральное отопление, горячая и холодная вода, природный газ
✅ Дом благоустроенный
✅ Не угловая, что обеспечивает дополнительный комфорт
✅ Один взрослый собственник, без долгов и обременений

Инфраструктура: школы, детские сады, магазины, торговые центры, остановки общественного транспорта, пункты выдачи заказов, больница и живописная набережная — всё в шаговой доступности!

Мы обеспечим полное юридическое сопровождение сделки, налоговую консультацию и безопасность оформления.

Не упустите шанс стать владельцем отличной квартиры в центре города!
📞 Звоните прямо сейчас! Ваш новый дом ждет вас!

Хотите скидку?

Предложите свою стоимость

Характеристики

  • Тип домаКирпичный
  • Этаж2
  • Этажность5
  • Общая площадь42 м²
  • Площадь кухни6 м²
  • Код объекта4285

Запланируйте просмотр

С вами свяжется специалист по недвижимости, подтвердит выбранное время просмотра, организует посещение предложения и проведет вам экскурсию.

Выберите дату и время

История изменения цены

Дата

Цена

Разница

8 сентября 2025 г.

2 250 000 ₽

Специалист по недвижимости - Королева Лидия

Королева Лидия

+7-900-543-43-32 Показать

или оставьте ваш номер, и мы вам перезвоним

Другие контакты:

Гарантия безопасности сделки

Ипотечный калькулятор

Рассчитайте ежемесячный платеж

Скидка на ставку 1-2%

от банков-партнеров для клиентов нашей компании

Похожие предложения

Позвонить