2-комнатная, 41 м², 3/4

8 месяцев назад

Сокол, Свердловская улица, 10 На карте

Микрорайон: Печаткино

2 470 000 ₽

60 244 ₽/м²

Рассчитать ипотеку
К избранному

Описание

Квартира подходит под семейную ипотеку 6 %.
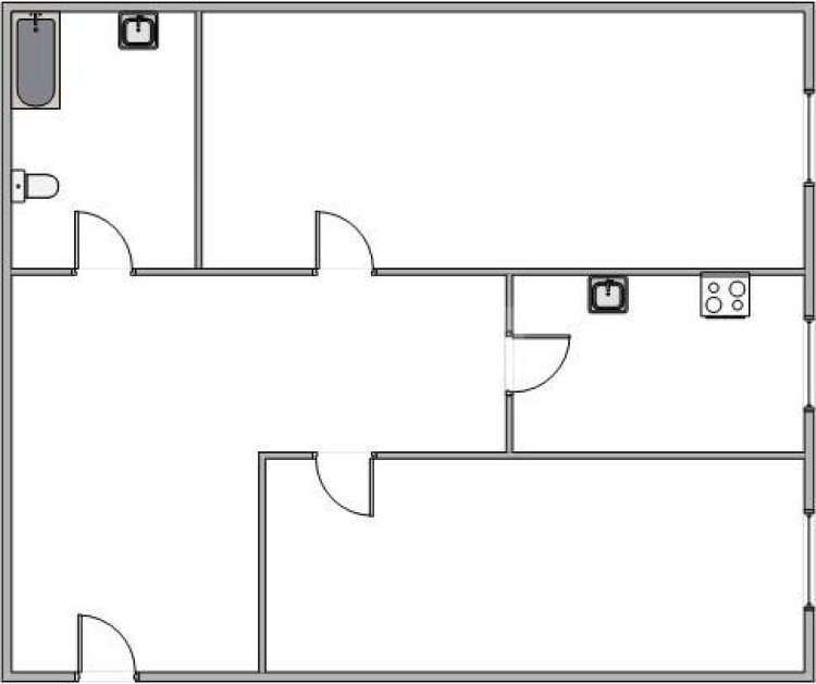
В продаже 2-комнатная квартира на 3 этаже четырехэтажного кирпичного дома в районе Печаткино. Общая площадь - 41 кв.м., кухни - 9 кв.м.

- Дом 2024 года постройки, есть пандус для инвалида.
- Отопление центральное, горячее и холодное водоснабжение.
- Окна и трубы пластиковые.
- Сделан косметический ремонт, потолки натяжные, на полу линолеум.
- Санузел совмещен, установлены счетчики на воду.
- Изолированная планировка, большая и вместительная кухня.
- Квартира не угловая, хорошие соседи.
- Новым покупателям можем оставить мебель по договеренности.

Полное юридическое сопровождение сделки и помощь в оформлении ипотеки.

Вся инфраструктура рядом: школы, садики, магазины, кафе, кадетский корпус, пункты выдачи, парковочные места, детская площадка.

Заинтересовало? Звоните.

Хотите скидку?

Предложите свою стоимость

Характеристики

  • Тип домаКирпичный
  • Этаж3
  • Этажность4
  • Общая площадь41 м²
  • Площадь кухни9 м²
  • Код объекта4219

Запланируйте просмотр

С вами свяжется специалист по недвижимости, подтвердит выбранное время просмотра, организует посещение предложения и проведет вам экскурсию.

Выберите дату и время

История изменения цены

Дата

Цена

Разница

1 августа 2025 г.

2 470 000 ₽

Специалист по недвижимости - Калагастова Юлия

Калагастова Юлия

+7-951-740-00-08 Показать

или оставьте ваш номер, и мы вам перезвоним

Другие контакты:

Гарантия безопасности сделки

Ипотечный калькулятор

Рассчитайте ежемесячный платеж

Скидка на ставку 1-2%

от банков-партнеров для клиентов нашей компании

Похожие предложения

Позвонить