2-комнатная, 47 м², 2/2

11 месяцев назад

г Сокол, ул Домостроителей, 14к2 На карте

Микрорайон: ЛДК

1 950 000 ₽

41 490 ₽/м²

Рассчитать ипотеку
К избранному

Описание

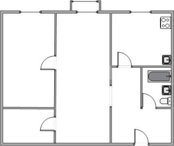
Вы в поисках 2-комнатной квартиры в районе ЛДК? У нас есть для Вас отличный вариант! Продается 2-комнатная квартира на 2 этаже панельного дома . Общая площадь – 47 кв. м., площадь кухни – 7 кв. м
- Квартира благоустроенная, очень светлая и теплая, комнаты изолированные.
- Окна деревянные, выходят во двор.
- Вместительная прихожая.
- Два балкона, в деревянном остеклении.
- Санузел раздельный, трубы заменены на пластиковые. Счетчики на воду. и газ
- Чистый подъезд
. - Спокойные соседи.
- Во дворе есть место для парковки машины.
- Все документы готовы к сделке.

Наше агентство поможет Вам приобрести эту квартиру с полным юридическим сопровождением, использованием средств материнского капитала, земельного сертификата, ипотеки (заявка в офисе), субсидии многодетным семьям

В шаговой доступности школа № 5, детские сады, сетевые магазины, автобусная остановка, поликлиника. Мы работаем для Вас, подберем ипотеку, работаем со всеми видами сертификатов. Хотите узнать подробнее? Звоните и записывайтесь на просмотр прямо сейчас!

Хотите скидку?

Предложите свою стоимость

Характеристики

  • Тип домаПанельный
  • Этаж2
  • Этажность2
  • Общая площадь47 м²
  • Площадь кухни8 м²
  • Код объекта3713

Запланируйте просмотр

С вами свяжется специалист по недвижимости, подтвердит выбранное время просмотра, организует посещение предложения и проведет вам экскурсию.

Выберите дату и время

История изменения цены

Дата

Цена

Разница

24 сентября 2024 г.

1 950 000 ₽

Специалист по недвижимости - Маркова Ирина

Маркова Ирина

+7-900-543-45-15 Показать

или оставьте ваш номер, и мы вам перезвоним

Другие контакты:

Гарантия безопасности сделки

Ипотечный калькулятор

Рассчитайте ежемесячный платеж

Скидка на ставку 1-2%

от банков-партнеров для клиентов нашей компании

Похожие предложения

Позвонить