3-комнатная, 57.1 м², 3/5

10 месяцев назад

г. Сокол, Интернатная ул., 7 На карте

Микрорайон: Печаткино

2 000 000 ₽

35 027 ₽/м²

Рассчитать ипотеку
К избранному

Описание

id:246.
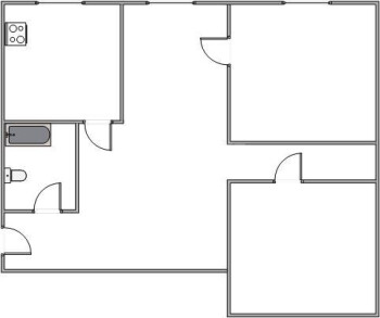
Продается теплая трехкомнатная квартира на 3 этаже пятиэтажного кирпичного дома в р-н Печаткино. Общая площадь 51,7 кв.м., кухни 6 кв.м.

- Квартира благоустроенная, с газовой колонкой.
- Комнаты смежно-изолированные.
- Санузел раздельный.
- Балкон
- Окна - пластиковые стеклопакеты.

Квартира расположена в хорошей локации рядом со школой и детским садом, а также в шаговой доступности сетевые магазины, аптека, кадетский корпус. Один взрослый собственник.

Помощь в оформлении ипотеки на выгодных условиях! Эта квартира может стать Вашей!

Наше агентство поможет Вам приобрести эту квартиру с полным юридическим сопровождением, использованием средств материнского капитала, земельного сертификата, ипотеки (заявка в офисе), субсидии многодетным семьям

Записывайтесь на просмотр уже сегодня!

Хотите скидку?

Предложите свою стоимость

Характеристики

  • Тип домаКирпичный
  • Этаж3
  • Этажность5
  • Общая площадь57.1 м²
  • Площадь кухни6 м²
  • Код объекта246

Запланируйте просмотр

С вами свяжется специалист по недвижимости, подтвердит выбранное время просмотра, организует посещение предложения и проведет вам экскурсию.

Выберите дату и время

История изменения цены

Дата

Цена

Разница

23 июля 2024 г.

2 000 000 ₽

Гарантия безопасности сделки

Ипотечный калькулятор

Рассчитайте ежемесячный платеж

Скидка на ставку 1-2%

от банков-партнеров для клиентов нашей компании

Похожие предложения