2-комнатная, 51 м², 2/3

2 месяца назад

г Сокол, ул Производственная, 51 На карте

Микрорайон: ЛДК

2 770 000 ₽

54 314 ₽/м²

Рассчитать ипотеку
К избранному

Описание

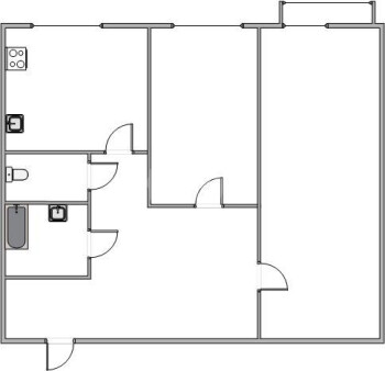
id:4250. В продаже свободная и чистая двухкомнатная квартира в панельном доме на комфортном 2 этаже трехэтажного дома.
Общая площадь 51 кв.м

- Квартира полностью благоустроенная с природным газом.
- Имеется застекленный балкон.
- Комнаты изолированные.
- На полу - паркет в комнатах, на кухне - плитка.
- Санузел раздельный.
- Окна пластиковые стеклопакеты.
- Санузел раздельный.

Квартира расположена в центральной части р-на ЛДК, вся инфраструктура в двух минутах ходьбы: сетевые магазины, детский сад, школа, почтовое отделение, поликлиника, остановка общественного транспорта.
Отличный вариант для молодой семьи! Надо брать, приветствуется любой расчет!

Хотите скидку?

Предложите свою стоимость

Характеристики

  • Тип домаПанельный
  • Этаж2
  • Этажность3
  • Общая площадь51 м²
  • Площадь кухни8 м²
  • Код объекта4250

Запланируйте просмотр

С вами свяжется специалист по недвижимости, подтвердит выбранное время просмотра, организует посещение предложения и проведет вам экскурсию.

Выберите дату и время

История изменения цены

Дата

Цена

Разница

25 августа 2025 г.

2 770 000 ₽

Специалист по недвижимости - Южакова Нина

Южакова Нина

+7-909-596-15-54 Показать

или оставьте ваш номер, и мы вам перезвоним

Другие контакты:

Гарантия безопасности сделки

Ипотечный калькулятор

Рассчитайте ежемесячный платеж

Скидка на ставку 1-2%

от банков-партнеров для клиентов нашей компании

Похожие предложения